传真:020-86343481
QQ:2238665685
邮箱:gzmaje@163.com
地址:广州市天河区元岗街天河慧通广场A区1423-1428室
工程名称:
广东中奥汽车销售一色桃子无码AV在线专区有限公司--奥迪4S店
工程面积:1000㎡
工程地址:广州-创佳路
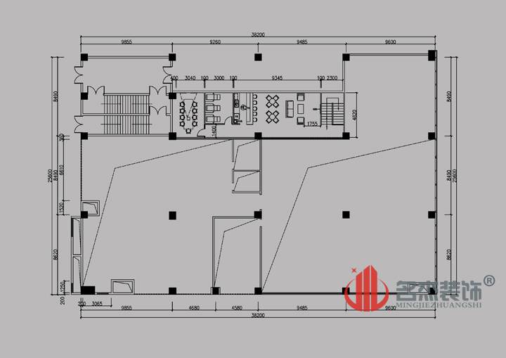
设计说明:设计师通过前期对4S店的实地调研,了解到了4S店空间所需的功能分区、空间流线、形态特征、常用材质等。通过与工作人员及客户的交流,从不同视角理解了此类空间除了功能需求以外的心理需求。该桃子视频免费下载观看动漫设计方案从奥迪品牌标志形态和汽车本身的形态出发,打造了与之相契合的流线型空间。为了突出展车,展厅以白色为主色调,用灰色来丰富空间,用亮色来点缀空间。该空间除了主要的展示空间,还设置了一些满足客户体验需求的交互空间、满足客户休闲需求的休息空间。为了丰富空间层次和满足人们最佳观赏视角的需求,在二层还设计了廊道连同空间。除了对展厅空间进行设计,该方案还对空间进行了延伸,设计了交车房和修车及保养车辆的区域,使得不同空间组块形成有机的统一体。
案例展示

门头桃子视频免费下载观看动漫设计

外观桃子视频免费下载观看动漫设计

大厅桃子视频免费下载观看动漫设计

大厅桃子视频免费下载观看动漫设计角度二

店长室桃子视频免费下载观看动漫设计

会议室桃子视频免费下载观看动漫设计

洽谈室桃子视频免费下载观看动漫设计

休息室桃子视频免费下载观看动漫设计

静休室桃子视频免费下载观看动漫设计

平面图桃子视频免费下载观看动漫设计

平面图桃子视频免费下载观看动漫设计



